Mietangebote
Unsere Mietobjekte in und um Celle bieten hochwertige Wohnungen in durchdachter Architektur – hell, effizient und mit einem angenehmen Wohngefühl.
Ob Single, Paar oder Familie – wir schaffen Wohnraum, der zu Ihrem Leben passt.


Modernes Wohnen mit Komfort und Nachhaltigkeit.






Fertigstellung voraussichtlich:
3. Quartal 2026
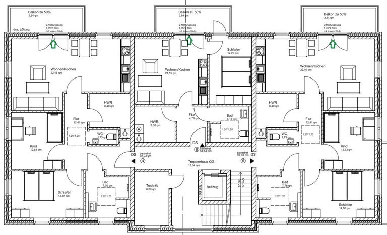
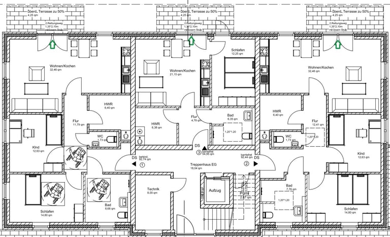
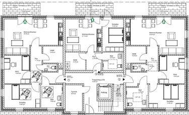
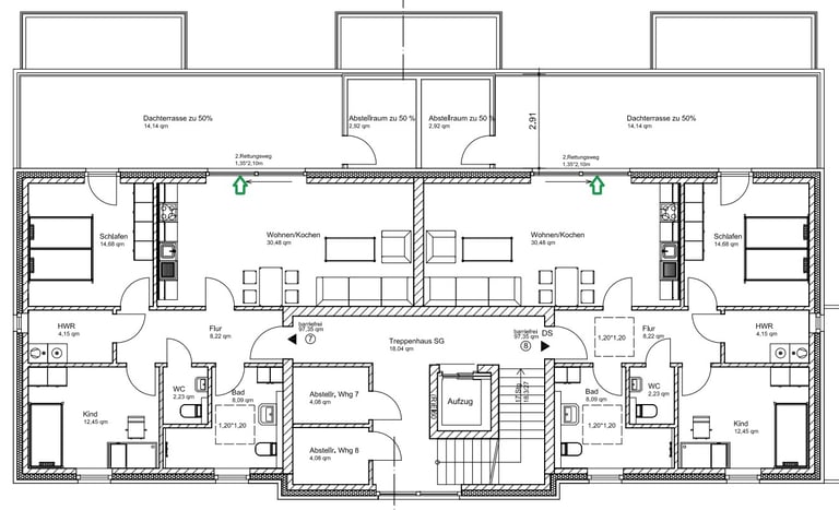
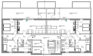
In Wietze entsteht ein modernes Mehrfamilienhaus mit acht großzügig geschnittenen Wohnungen, energieeffizient gebaut und mit ansprechender Ziegelfassade.
Jede Wohnung überzeugt durch durchdachte Grundrisse, helle Räume und eine ruhige Lage mit Nähe zur Natur.
Ideal für Menschen, die komfortables Wohnen mit nachhaltigem Anspruch verbinden möchten.
Wietze Mehrfamilienhaus
mit 8 Wohneinheiten




Fertigstellung voraussichtlich:
3. Quartal 2026
In Lachendorf entsteht ein Mehrfamilienhaus mit 10 modernen Mietwohnungen, die durch Energieeffizienz, klare Linien und hohen Wohnkomfort überzeugen.
Aktuell liegen noch keine Zeichnungen vor – weitere Informationen folgen in Kürze.
Lachendorf Mehrfamilienhaus
mit 10 Wohneinheiten
Standorte
Unsere Projekte in und um Celle bieten modernen, nachhaltigen Wohnraum mit hoher Lebensqualität und klarer Architektur.
Wir legen Wert auf gute Erreichbarkeit, ruhige Wohnlagen und eine Umgebung, in der man sich zuhause fühlt.
Kontaktieren Sie uns
Sie interessieren sich für eine unserer Mietwohnungen oder möchten mehr zu aktuellen Projekten erfahren?
Sprechen Sie uns gerne an – wir beraten Sie persönlich und unverbindlich.


*Mit dem Absenden dieses Formulars erkläre ich mich mit der Verarbeitung meiner Daten gemäß der Datenschutzerklärung einverstanden.
Über uns
Cellesche Bauwerk GmbH
An den Wiesen 13
29223 Celle
© 2025. All rights reserved by creativ.castle.
